請問穿梭車貨架軌道接縫處的間隙留多大?

趙:第一要考慮熱脹冷縮,肯定是要有一點兒(er) 縫,但是很多地方都用螺栓固定了,熱脹冷縮的地方空間並不很大,所以這個(ge) 縫可以忽略。剩下的因為(wei) 安裝問題,我們(men) 在設計過程當中,必須要讓金屬件的尺寸略微的小些,那麽(me) 這就和穿梭車允許的偏差相關(guan) 。
王智育:小於(yu) 2毫米
趙:嗯,你說的這個(ge) 是標準嗎?還是說你在安裝過程當中的客戶要求是,因為(wei) 穿梭式貨架,現在設計標準,安裝標準應該還沒有呢?這一塊應該是要詢問設備供應設備配合設備商的,你這個(ge) 兩(liang) 毫米的依據是什麽(me) 呢?
王智育:一般的設備商,他給出的是這個(ge) 標準。
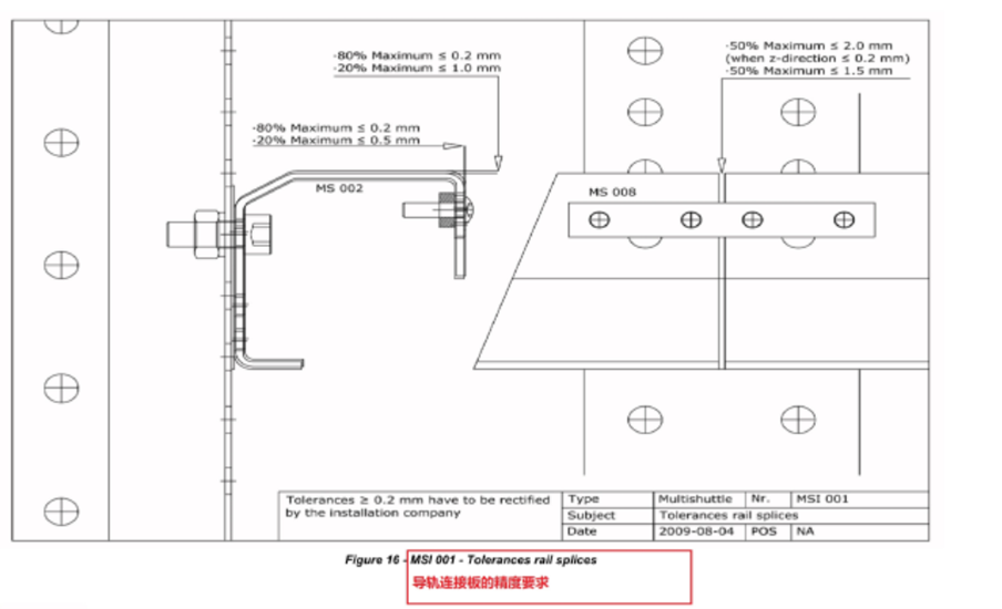
Tyree 雷:安裝穿梭式貨架時,必須將軌道間距偏差控製在±2mm範圍內(nei) ,導軌接縫小於(yu) 3mm,導軌接頭處高低差小於(yu) 0.5mm;導軌水平度、直線度整長小於(yu) 3mm,單位托盤內(nei) 水平度、直線度小於(yu) 1mm;左右兩(liang) 側(ce) 導軌的平行度小於(yu) 3mm,單位托盤內(nei) 的平行度小於(yu) 1mm。(出廠要求)
張衛國:
1)理論上車輪滾動麵是無縫對接,正如高鐵要用無縫鋼軌;
2)因為(wei) 穿梭車運行速度高低決(jue) 定了車輪在這個(ge) 接縫高低麵上產(chan) 生的衝(chong) 擊,會(hui) 對車輪的使用壽命產(chan) 生影響;故速度高的輕型穿梭類貨架軌道接縫小於(yu) 速度低的;載重大的小於(yu) 載重輕的,這主要是針對安裝過程的控製要求;
3)所以這個(ge) 接縫的預留不是真的留給安裝的可方便調節量;
4)那麽(me) 這個(ge) 間隙範圍的造成:---導軌生產(chan) 過程中的製造誤差,就是端麵某個(ge) 點無間隙了,但是這個(ge) 正麵也存在單邊製造誤差±0.5mm,考慮到普遍適用性(每個(ge) 工廠的製造精度不同),所以會(hui) 適當放寬到±1mm;
5)實際使用中由於(yu) 貨架柱腳的高低調整不絕對水平,包括貨架立柱安裝孔也有高低差,有貨物或無貨物搬運過程中存在的軌道及貨架結構體(ti) 之間的變形、移位等也會(hui) 局部拉大間隙,設計人員也會(hui) 考慮所有結構件之間的設計預留量,達到所謂的±2mm;
6)實際上在某些縫比較大的安裝現場就必須進行接縫端麵的倒角處理;以減少可能的端麵高差造成的車輪壽命影響。
那個(ge) 軌道的熱脹冷縮影響,我們(men) 目前的設計還沒有考慮,那個(ge) 太複雜了,但是多段,拚接長度比較長的,預留縫會(hui) 比較大,但是安裝過程中也是要求盡可能地小。
兩(liang) 向穿梭車精度上不會(hui) 受多少影響,四向穿梭車會(hui) 有子軌道與(yu) 母軌道之間換向切換位的精準度要求,否則會(hui) 影響搬運效率
周國平:首先要考慮此構件的效用,軌道,伸縮縫必須滿足車輪運行需求,再者通常總長度為(wei) 30~40米二端與(yu) 貨架固定,可以視作自由端,同時這類道軌均配襯板螺栓連接,而且與(yu) 道軌連接的其他構件基本上厚度小於(yu) 道軌的同類材質,隻要有1mm~2mm的伸縮縫足夠,縫隙大了不利於(yu) 運行,另外軌道縫隙處的溫差相對貨架要小,以上沒有以物理數據上作分析僅(jin) 憑經驗,供參考。
羅海:張老師周老師回答專(zhuan) 業(ye) !我所在公司已做過10多個(ge) 穿梭庫項目,項目運行穩定。我亦做過3年項目管理,在現場蹲過。穿梭貨架導軌一般較短,接縫越小越好,一般縫隙大是由於(yu) 製造誤差引起。需要注意穿梭車側(ce) 導輪所在接縫位置,盡量控製在0.5以內(nei) 。
趙明玉:所以從(cong) 幾個(ge) 老師滴說法上看,標準的製定是當務之急。
虞海:老外給的圖我覺得比較人性化,接縫按百分比來。因為(wei) 製作、安裝都有誤差。

祝修恒:我補充一句,上麵張衛國張工講到"倒角處理",我以為(wei) 這是很必要的。
通常情況下,導軌總會(hui) 有接頭,而由於(yu) 製作誤差,切斷處的90度多少會(hui) 有一點偏差,而且由於(yu) 安裝誤差,接口兩(liang) 端多少也會(hui) 有一點高差。所以,輪子行走時或多或少會(hui) 有咬輪的現象出現。久而久之,一則行走時噪音增大,二則磨損增大。所以,在軌道端頭打一個(ge) 倒角是完全必要的。
其實也不必嚴(yan) 格地打1×45度或2×45度,隻需拿平銼帶一下就可以了。
比如日本的堆垛機天軌,常用方管來做,也都是在端頭設計了倒角的。
本站問答文章及圖片均來自貨架工程技術服米兰体育官网入口微信群及相關(guan) 互聯網,技術文獻為(wei) 貨架行內(nei) 專(zhuan) 家投稿,貨架內(nei) 參由米兰竞技足球俱乐部官网整理編輯,一切版權均歸源作者所有。如果侵犯了你的權益請來信或來電告知我們(men) 刪除。文中內(nei) 容僅(jin) 供參考,不代表本公司觀點,轉載請注明出處:米兰竞技足球俱乐部官网檢測

